Smíchov City - Sever

Místo: Praha 5
Klient: Sekyra Group, a.s.

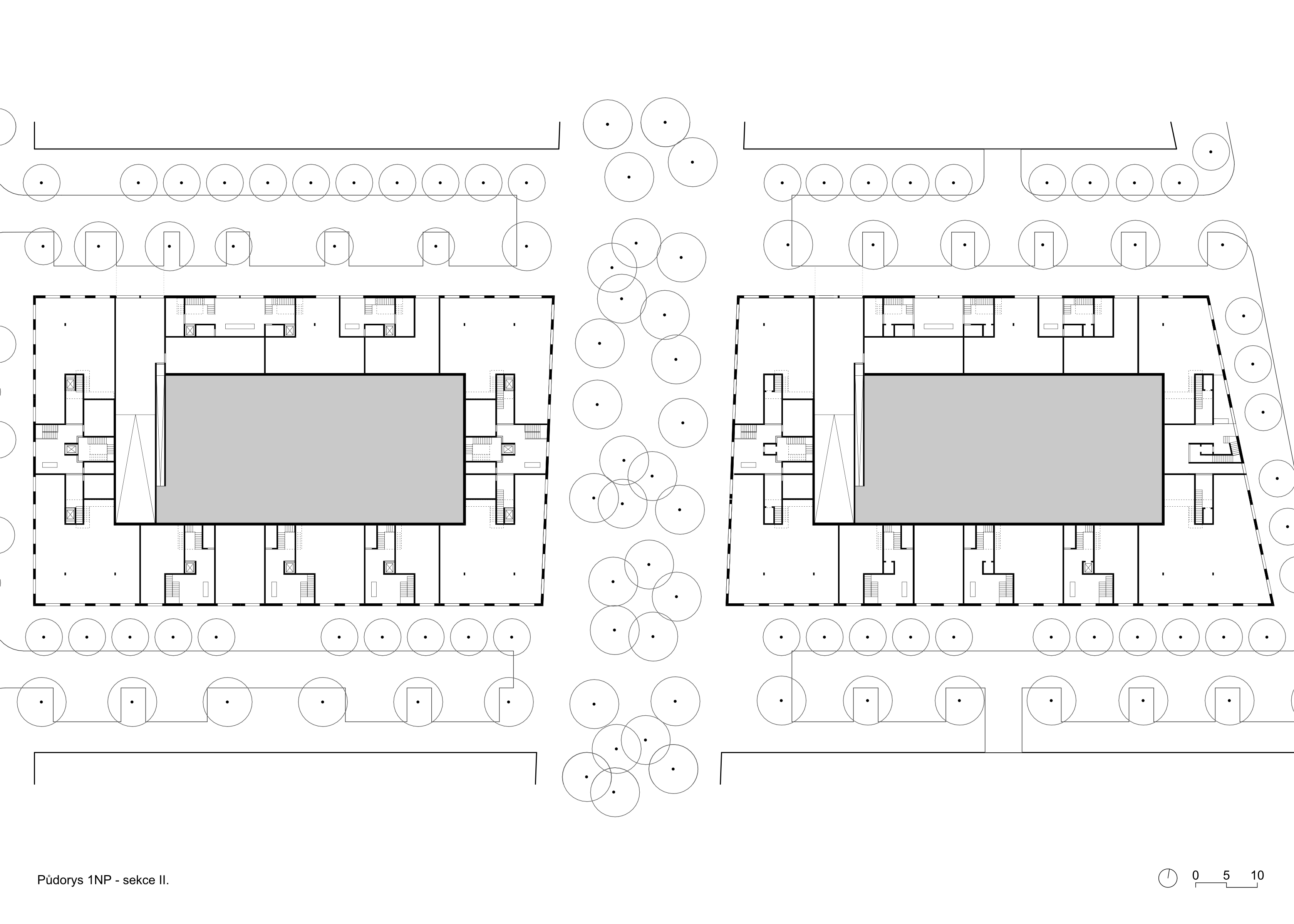
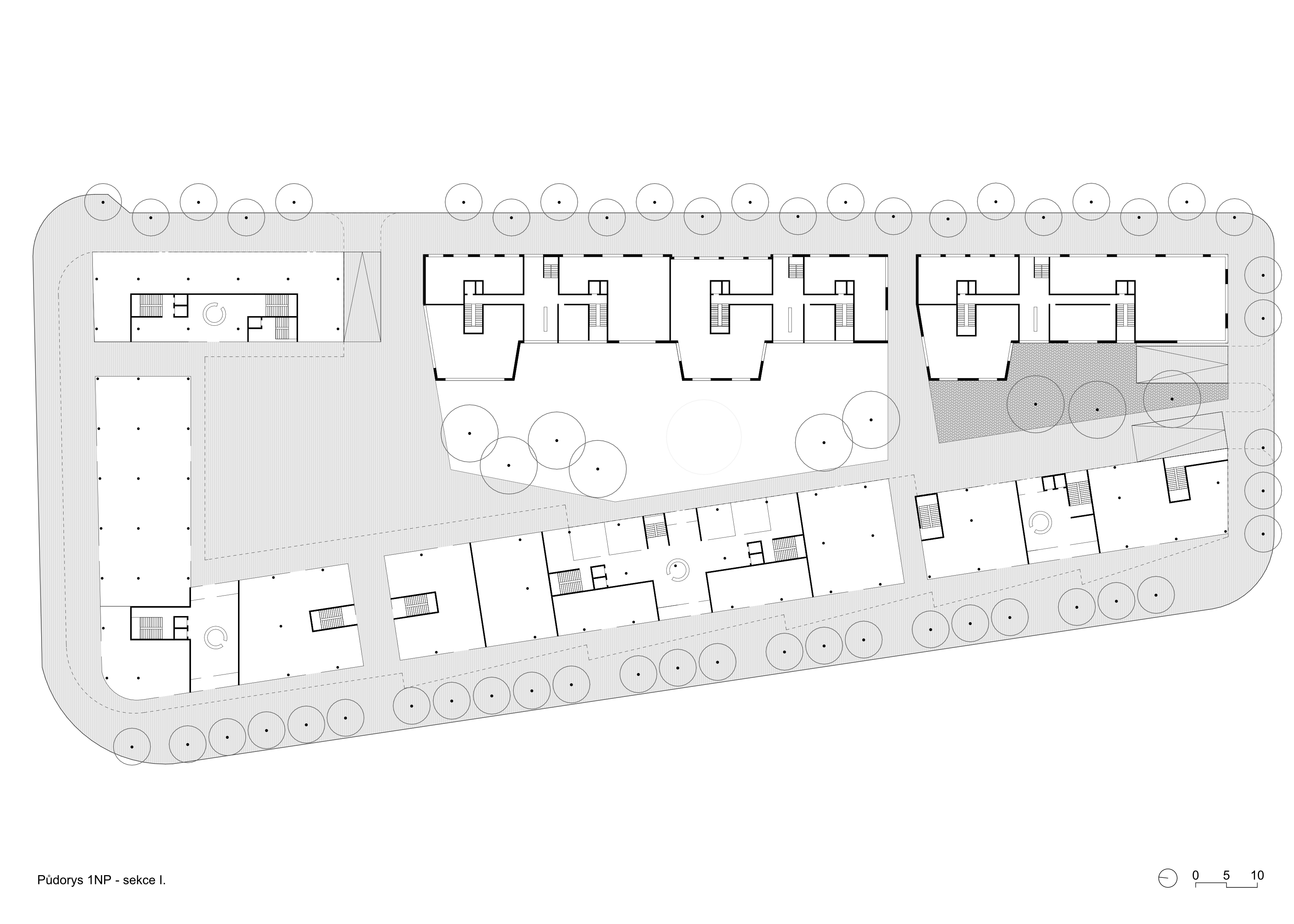
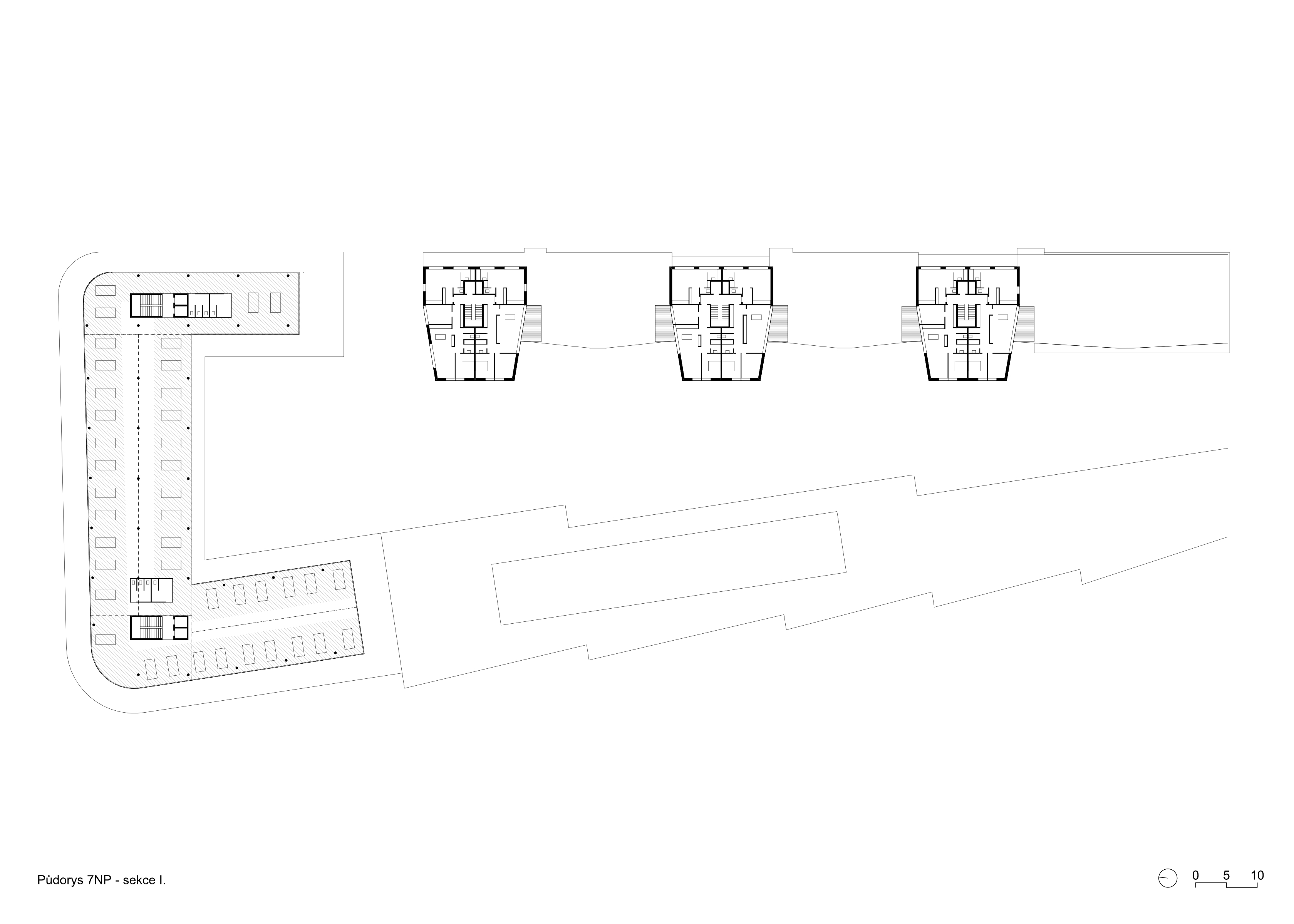
Projekt Smíchov City představuje proměnu brownfieldu smíchovského severního nádraží na novou městskou čtvrť. Nabídne téměř 400 000 m2 bytových, administrativních, obchodních či veřejných ploch. Na základě úspěšné účasti v mezinárodní soutěži jsme byli vyzváni k návrhu tří domovních sekcí jednoho z nových městských bloků. Smíchov jsou pro nás konzervativní činžovní domy s malým počtem bytů na patro, živé pavlačové či velkoryse prosvětlené funkcionalistické domy ustoupené od uliční čáry. Jedno je pro všechny domy charakteristické - mají půdy, do kterých se vkládají prostorné atypické byty.

Realizace

1 / 12

Navrhujeme pevné, ale bohatě prosvětlené domy do výšky hlavní římsy a nad ni klademe lehké či hravé ustupující nástavby. Materiálové řešení fasád a vstupních prostor reflektuje hierarchii veřejných prostor, ve kterých jsou domy umístěné. Do hlavního bulváru používáme v parteru skleněné obklady s odkazem na kvalitní architekturu první republiky. Do bočních ulic pak používáme industriální lakovaný plech či tradiční ušlechtilou omítku. V obytných podlažích pracujeme s motivy masivního dřeva, matného skla, současně interpretovanými kamenickými detaily ostění oken a zámečnického zpracování balkonů či lodžií.

Vizualizace a půdorysy jednotlivých realizovaných sekcí

1 / 7

Soutěž: 2015
Projekt: 2016 - 2022
Realizace: 2022 - 2025
Celkové řešené území: 3,5 ha
Celková užitná plocha: 6 000 m2
Počet bytových jednotek: 64

Autor: Roman Brychta, Adam Halíř, Ondřej Hofmeister, Petr Lešek
Spolupracující architekt: Bohdana Linhartová, Marek Sankot, Klára Táboříková, Mária Javorová Ralbovská, Ondřej Hart

HIP projektu: EBM Group
Fotografie: Peter Fabo

Mapa