Knihovna a kulturní centrum Vozovna

Místo: Praha
Klient: Městská část Praha 3

Zapomeňte na potemnělé sály a nepřehledné chodby. Pobočka Městské knihovny v Praze spojená s Kulturním centrem MČ Praha 3 zvesela zve k návštěvě a přitom nabízí rozličná místa podle potřeb uživatelů. Prodejny potravin již nepotřebují velké sklady jako před 40 lety. Městská část Praha 3 proto zvolila pro svou nuceně přemisťovanou pobočku Městské knihovny využít právě přízemní i podzemní prostory velkoprodejny potravin v bytovém domě ze 70. let 20. století. Návrh vychází ze tří premis: přehlednosti, jednoduchosti a příjemnosti. Prostorové řešení přináší do prostor zásadní kvalitu – maximum přirozeného světla.

Pobočka Městské knihovny v Praze

1 / 8

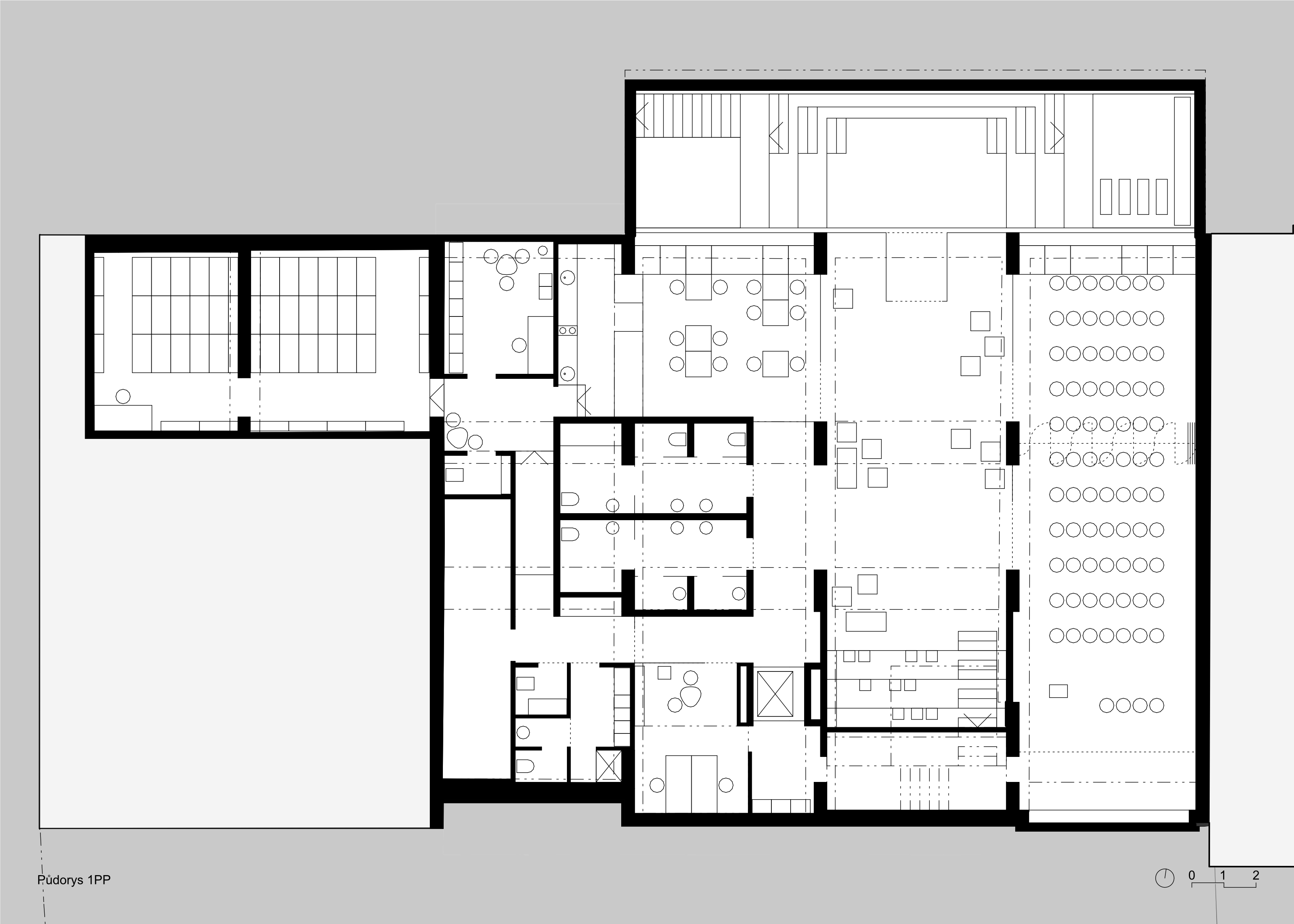
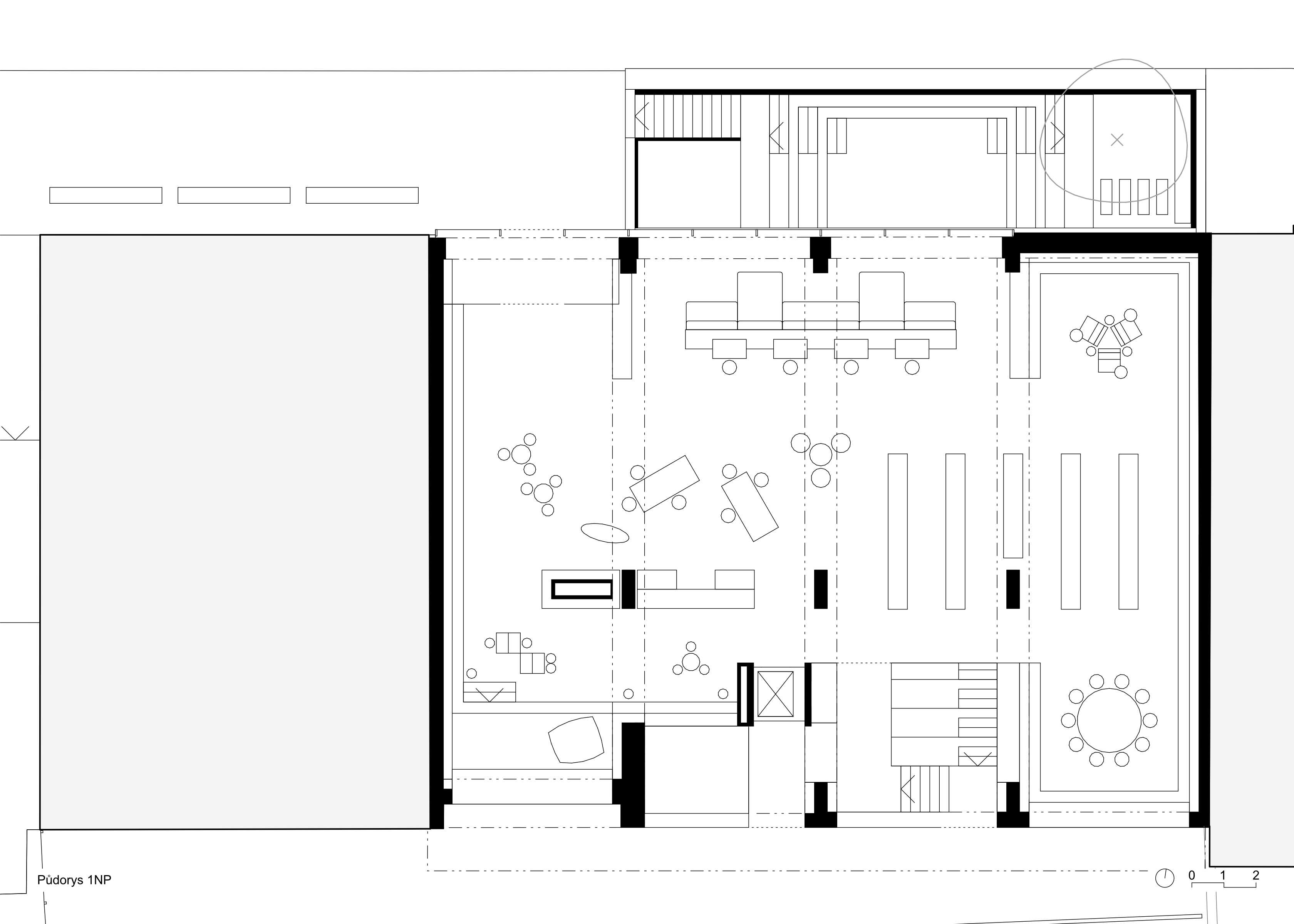
Knihovna je umístěna v přízemí bezbariérově přístupném z ulice. V celém prostoru byly odstraněny všechny vestavby a knihovna je tak prosvětlena z ulice i vnitrobloku. Uliční výkladce byly ponechány a je k nim přiřazena dlouhá pohovka, která zve kolemjdoucí k návštěvě a zároveň odstiňuje vnitřní prostor od ruchu ulice. Knihovna má velkorysý bílý prostor s nikami s barevnými akcenty pro odlišné činnosti. Vstupní část je červená. Žluté dětské oddělení má atypické prvky regál–lední medvěd a stolek-domek. V zadní části knihovny je studovna s velkým zeleným kulatým stolem a pohodlné sezení v modrých křeslech. Modré boxy internetu tvoří záda vínové lavicí u uliční fasády. Celý prostor spíná dřevěná lavice, která obíhá po obvodu před knihovními regály a umožňuje náhodné posezení u vybírané knihy. Do suterénu se sestupuje po schodišti proměňujícím se v hlediště. Tak přivádíme dolů přirozené světlo. Prožitek světla je umocněn protilehlým anglickým dvorkem, který je samostatným vstupem do Kulturního centra. Prostor napříč mezi hledištěm a vstupem je foyerem, který slouží pro výstavy, ale může se proměnit i v sál.  Kulturní centrum má ponechané syrové betonové stěny a je rozděleno skleněnými příčkami na sály různých velikostí. Flexibilita a řada neformálních prostorů umožňuje uspořádat různé společenské akce.

Komunitní centrum MČ Praha 3

1 / 4

Projekt: 2013 - 2014
Realizace: 2014 - 2015
Otevření: 12/2015
Plocha zastavěná: 463 m2
Plocha užitková - stavba: 830 m2
Obestavěný prostor: 3 611 m3
Plocha venkovních úprav: 85 m2

Autor: Roman Brychta, Petr Lešek
Spolupracující architekt: Marisa Lechthaler, Bohhdana Linhartová, Marek Sankot

Sadové úpravy:  Pavlína Malíková, Aleš Steiner
Návrh sedačky: Radim Babák, Ondřej Tobola
Fotografie: Andrea Thiel Lhotáková

Mapa