Bytové domy Nad Koulkou

Místo: Praha 5
Klient: Městská část Praha 5

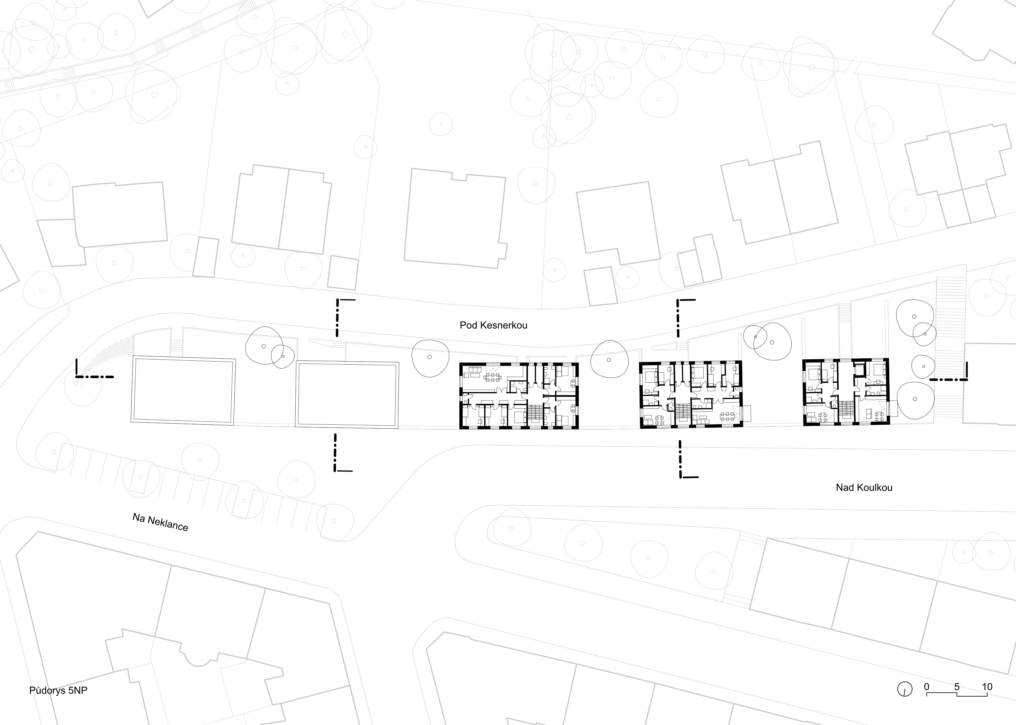
Území, do kterého vstupujeme, je morfologicky přirozeně bohaté a urbanisticky členité. Okolní zástavba mění spolu se stoupajícím terénem charakter od blokových struktur, přes lineární soubory bytových domů, až k solitérním činžovním vilám a rodinným domům. Ty lemují klikatou komunikaci k vrcholu kopce. Navazujeme na kontext a hodnoty území a opuštěnou terénní hranu pod zatáčkou naplňujeme kombinovanou funkcí. Forma objektu má dvojí charakter. Tvář do náměstí má spojitou fasádu nabízející zázemí pro služby a maloobchod, jižní strana do svahu a k rezidenční zástavbě je členěná na samostatné objekty s obytnými meziprostory. Ty zachovávají výhledy z objektů sousedících přes ulici Pod Kesnerkou.

Vizualizace

1 / 4

Dispoziční řešení domu není pevně dané. Vychází z modulového systému, který je naplněn pestrou paletou bytových jednotek. Přesto že jsme domu vtiskli jasnou podobu, jeho systém umožňuje „naladit“ optimální skladbu bytů, počet podlaží i hmotové členění podle požadavků investora a připomínek majitelů okolních nemovitostí.

Soutěž: 6/2018
Plocha zastavěná: 1 854 m2
Obestavěný prostor: 23 803 m3
Hrubá podlažní (nadzemí i podzemí): 7 143 m2
Užitná plocha bytů: 2 336 m2
Nebytové jednotky: 965 m2

Autor: Adam Halíř, Ondřej Hofmeister, Petr Lešek
Spoluautor: Ondřej Hart
Spolupracující architekt: Tomáš Havelka, Michael Pavliš

Mapa