Areál volného času se zázemím ve Vimperku

Místo: Vimperk
Klient: Město Vimperk

Vycházíme z krajinného rámce rozevírajícího se údolí potůčku. Jednoduchá morfologie byla historicky upravena vložením větších a menších teras sportovišť a solitérních objektů. Nejedná se jen o sport a rekreaci, ale i další veřejné služby (úřad, lékař). Nechceme omezenost zásahů v přehledném rámci údolí rozšiřovat, ale naopak jednoznačněji definovat. Co je umělé a co je krajina. Vodoteč otevíráme, aby se opět stala orientačním prvkem údolí. Sportovní plochy uchováváme jako umělé terasy a snažíme se je zmenšit a oddělit (tenisové kurty, koupaliště). Plochy mezi nimi budou volnou přírodou protkanou cestami. Ty vytvářejí páteřní spojení i vycházkové okruhy. Prostupnost území je důležitá i pro pohodlné a smysluplné propojení sídliště a starého města. Prostředí nabízíme i pro neformální sport a rekreaci.

Vizualizace

1 / 2

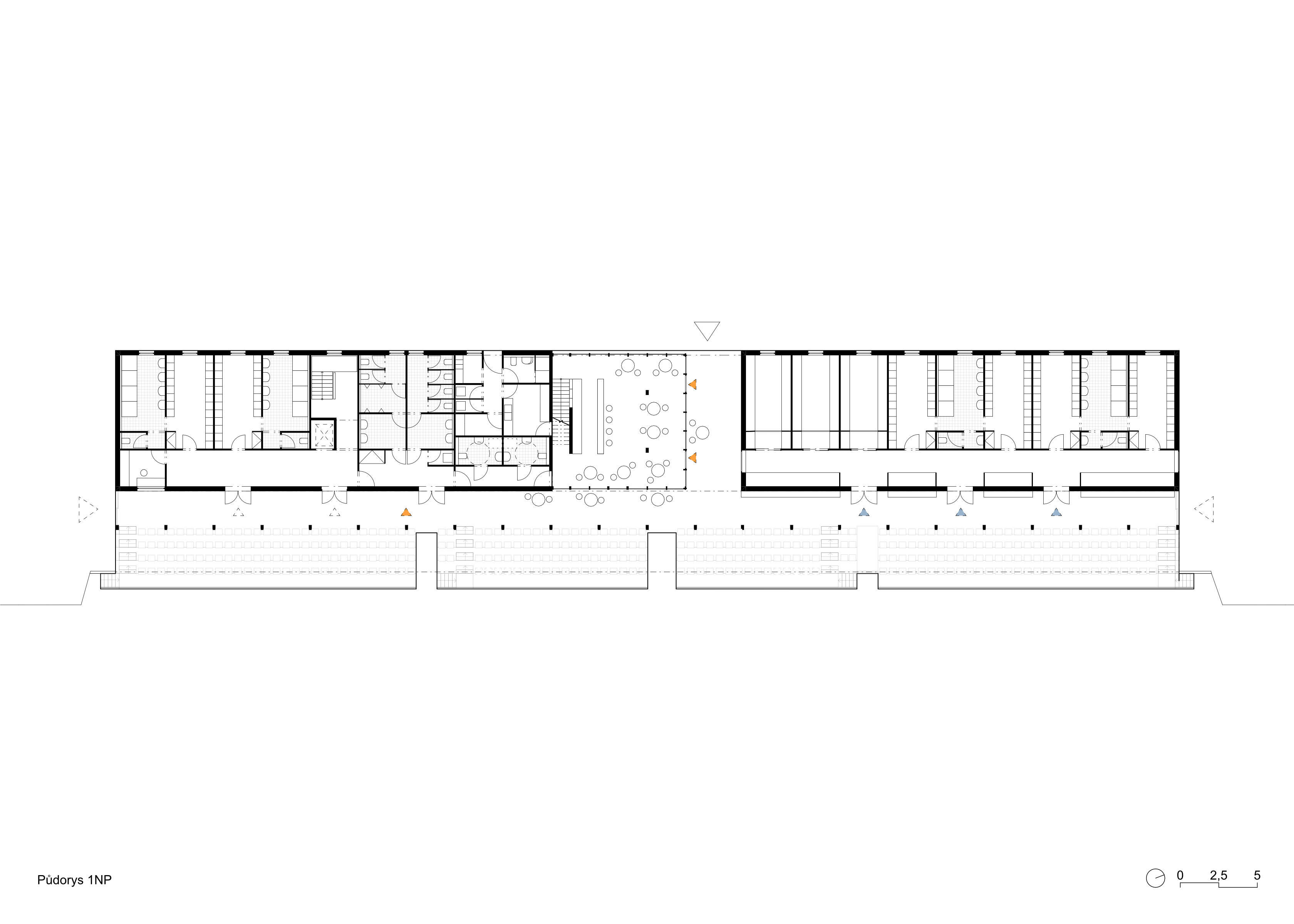
Základním veřejným prostorem je hlavní plocha areálu před novými šatnami „Václavák“ a na něj kolmé „Korzo“ podél revitalizovaného potoka. Cestu Korza protahujeme výš až za úřad, aby propojila celé údolí. Na horním konci je druhým propojením sídliště a města. Specifickým tématem je Sušická ulice, která dnes působí jako nepříjemná výpadovka. Navrhujeme ji proměnit na „Obchodní třídu“ pro projíždějící a obyvatele sídliště. S proměnou Sušické ulice souvisí i doporučení výstavby podél ní a nikoliv uvnitř areálu. V něm umisťujeme jen nízký objekt zázemí stadionu. Navrhujeme regulaci ulice Nad Stadionem a také možnost výstavby u křižovatky Sušická – Nad Stadionem jako doplnění vstupní brány města. Regulací vymezujeme uliční čáru celého „superbloku“. Uliční čára vymezuje komunikace okolo a definuje tak i šířky vozovky, prostoru pro cyklisty, případného parkování, stromořadí a chodníku. Přibližuje ulice k větší městskosti včetně umožnění vytvoření parteru.

Soutěž: 12/2023
Plocha řešeného území: 17 ha
Plocha zastavěná: 1 062 m2
Užitná plocha: 1 648 m2
Obestavěný prostor: 3 314 m3
Podzemní části: 1 277 m3
Nadzemní části: 2 037 m3

Autor: Adam Halíř, Ondřej Hofmeister, Petr Lešek
Spoluautor: Diana Lučková, Jan Nerud

Krajinářský architekt: Klára Concepcion, Zuzana Grečnárová
Grafický design: Jaromír Hárovník
Dopravní řešení: Miroslav Vondřich

Mapa