Regional headquarters ČSOB Hradec Králové

Location: Hradec Králové
Client: ČSOB, Radlice Rozvojová a.s.

1. prize in the architectural competition
The Office of the Year Award 2021

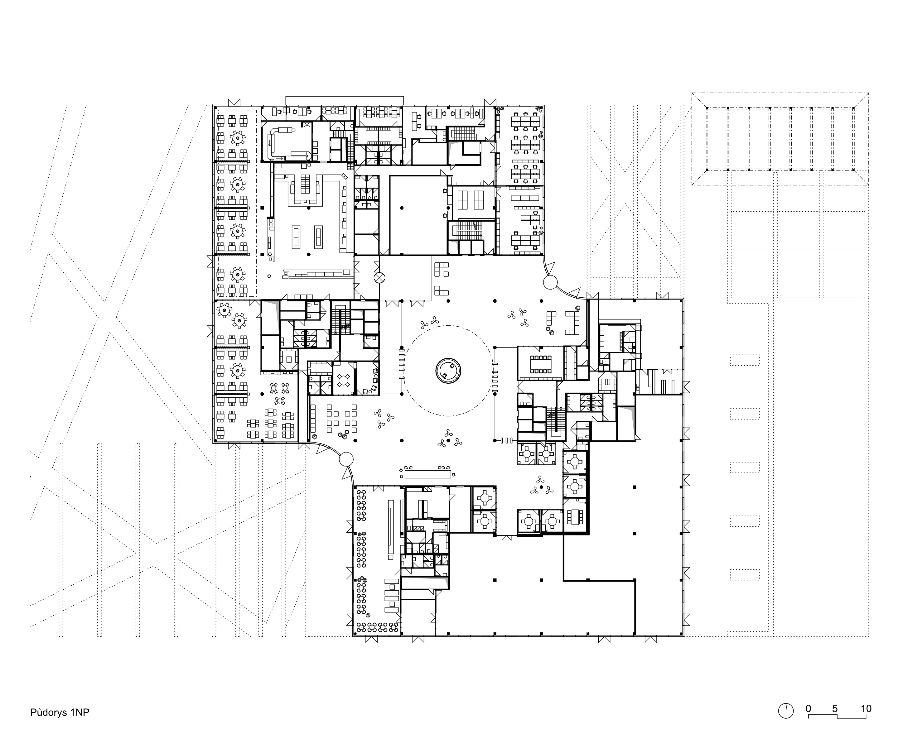
The new ČSOB regional headquarters is an office building with a semi-public ground floor. The building features a distinctive floor plan with two exterior and one interior atrium. The recessed sections at the opposite corners create two piazzas that respond strongly to their surroundings from an urban planning perspective. Thanks to this concept, the main entrances to the building are positioned close to its very center. The extensive use of glazing ensures a seamless transition between the building’s exterior and interior, thereby emphasizing its openness and approachability. Cornices between the individual floors accentuate the building’s horizontal lines and visually lower its profile. The architecture is practical and functional, with a solid and cohesive building volume. The building’s integration into the existing environment is supported by the ground floor’s connection to the surroundings. The southwestern piazzetta houses a café; the dining area to the west visually connects with the meadow along the Elbe riverbank; the entrance to the bank branch faces Collinova Street; and visitors and employees arrive at the northeastern piazzetta from Gočár’s Ring Road via the public transit stop. The building’s roof is designed as a rooftop garden offering views of the city center and, beyond its outskirts, of the surrounding landscape, including the ridges of the Orlické Mountains and the Krkonoše Mountains with Sněžka.

Exterior

1 / 4

The ground floor of the building is open to the public. The center of the entrance hall features a circular reception area, above which a central interior atrium extends through all above-ground floors. The circular atrium brings natural light into the center of the floor plan and serves as a natural landmark on all above-ground floors. Connected to the central common space, two vertical cores run through the building, containing staircases, elevators, restrooms, and mechanical and electrical equipment. The office floors extend from the central circular atrium, toward which the exits from the vertical cores are oriented.

Interior

1 / 5

Competititon: 2015
Project: 2016-2019
Implementation: 2019-2021
Usable area: 36 900 m2
Built-up area: 7 980 m2
Built-up space: 170 000 m3

Chief designer: PROJEKTIL ARCHITEKTI
Author: Roman Brychta, Adam Halíř
Collaborating architect: Marek Sankot, Klára Táboříková, Jan Karásek, Ondřej Hart, Thu Huong Phamová, Renata Horová


Chief project engineer, Construction design, BIM: Karlínblok
Statics: Němec Polák
Garden design: Ateliér zahradní a krajinářské architektury Sendler
Rainwater management: JV PROJEKT VH
Fire safety: Ampeng
Building technical environment: Atavis
Electrical equipment: AZ elektroprojekce
Transport construction: ADVISIA
Visual design, infosystem: Lukáš Kijonka, Alexey Klyuykov
Photographer: BoysPlayNice

Map