Open Garden Údolní 33 Brno

Location: Brno, Czech Republic
Client: The Partnership Foundation, State Environmental Fund of the Czech Republic

1st place in the architectural competition
CEEP: Ministry of the Environment Award 2012
CEEP: Czech Energy and Ecological Project 2012
Nomination for the 2016 Club For Old Prague Award for a new building in a historic environment

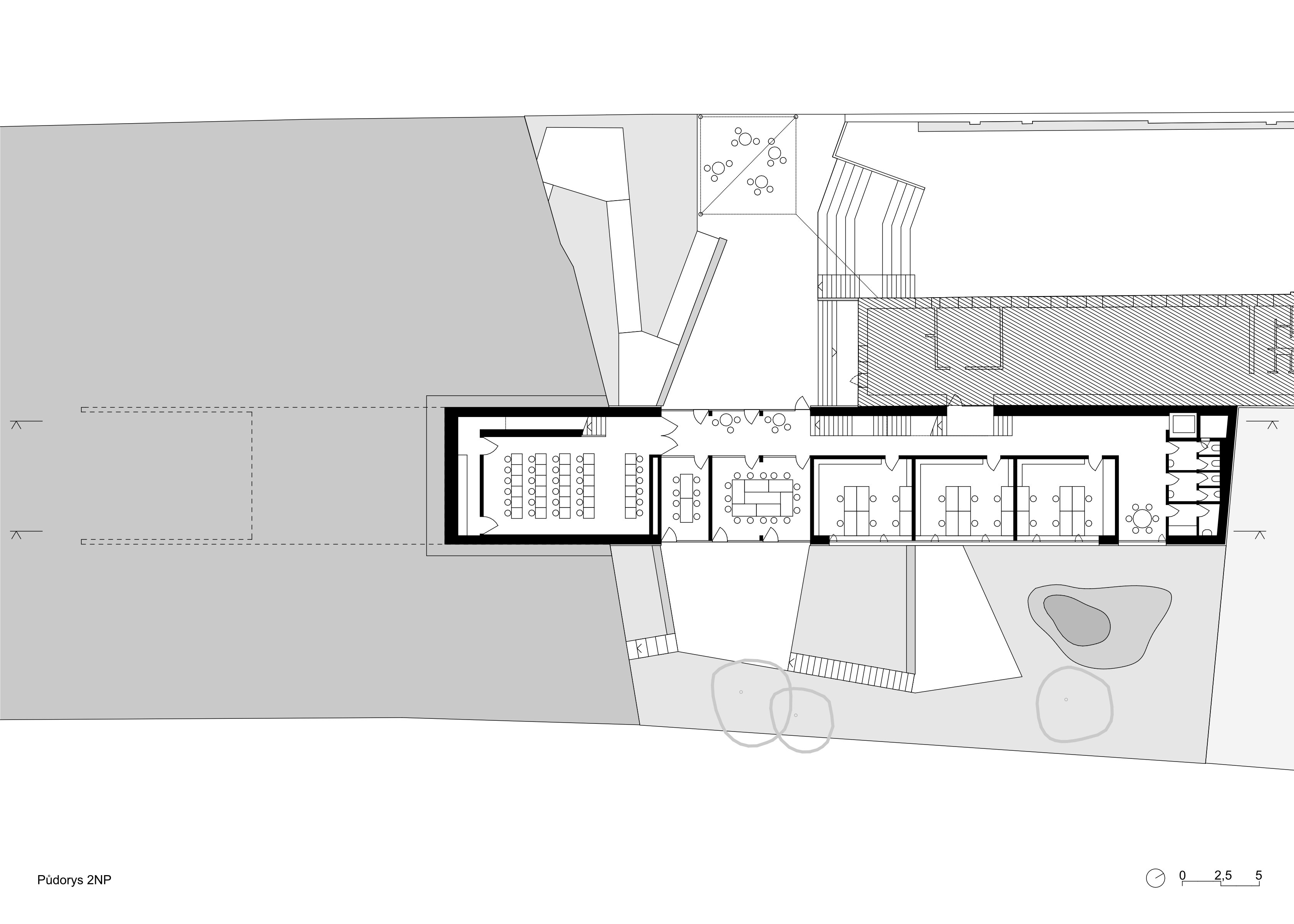
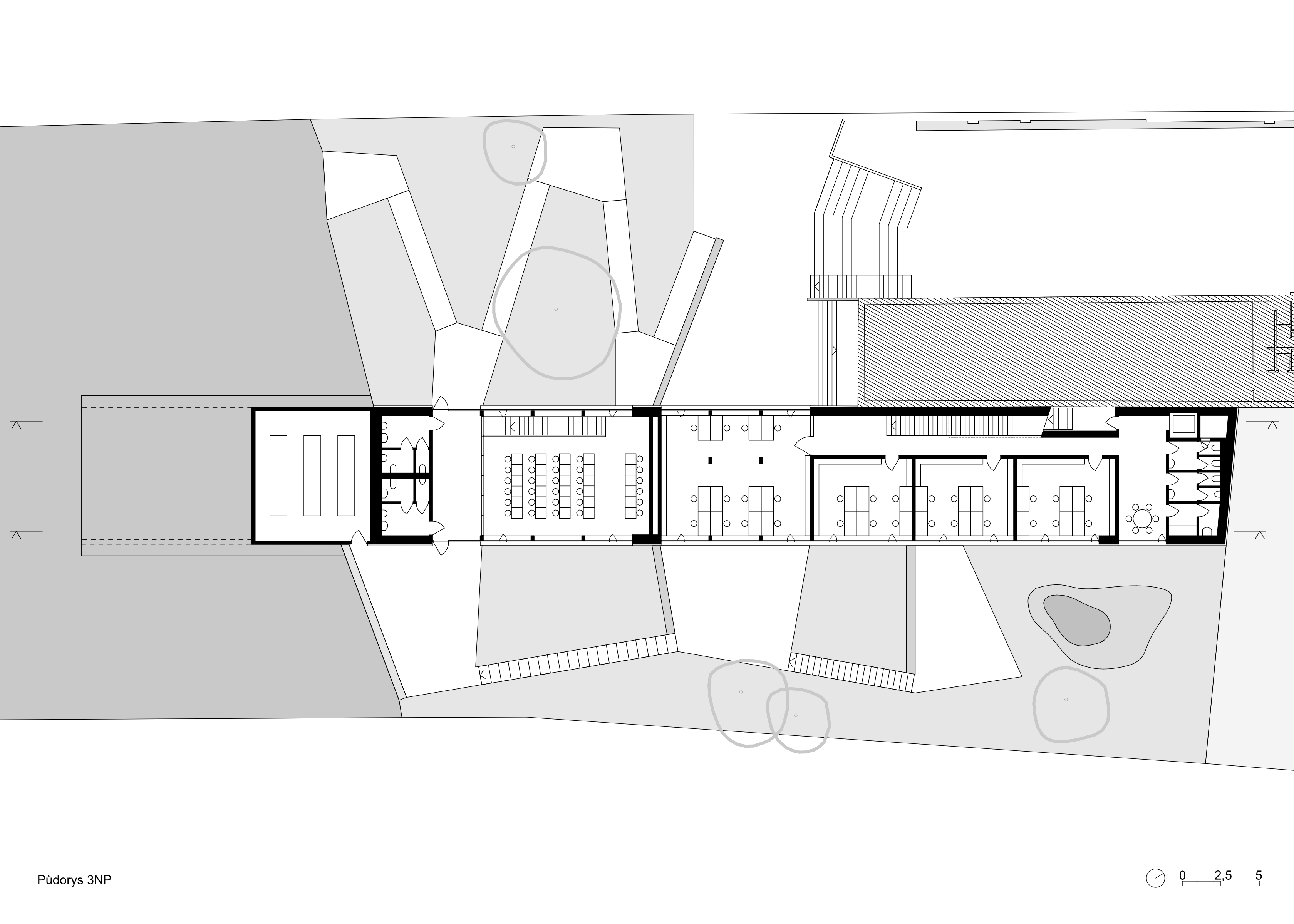
The building of the NNO Centre (advisory center for non-profit and non- governmental organisations) designed in passive energy standard is the first building of this type in the Czech Republic. It is an administrative building, open to the public, which through its operator openly publishes its technical parameters achieved during operation. The functional content of the building is a consulting, conference and educational centre. It stands on a plot of land at the foot of Špilberk and is a link between the green hillside and the historic Údolní thoroughfare. The key features of the building are its accessibility and permeability. The southern end of the building rises into the hillside and offers its fourth outdoor floor - the green roof - for residence. The Centre itself is surrounded by an environmental education garden open to the public.

Exterior

1 / 5

The load-bearing structure of the building consists of a reinforced concrete combined skeleton. To reduce the share of non-renewable primary resources, the lightweight envelope is constructed as a prefabricated timber frame building with wood and hemp-based insulation. The building energy concept has been designed as a "thermally robust construction" that eliminates heat loss while being able to use heat gains efficiently when they are beneficial, or conversely limit and dampen them when they lead to overheating of the interior space. In the second row, active elements and technologies are designed to respond efficiently to changing outdoor conditions and user requirements with low consumption of energy supplied from outside (heat pump, BTK system, HVAC units with heat recovery, natural ventilation, controlled lighting intensity). The house includes a bio-information system, created by Studio Pixl-e graphic designers using grass, leaves and wilted flowers from Brno florists. They applied the biomass to the interior walls and ceilings via a text template. The texts, describing the content of the work and frequently used expressions, were supplied by the employees and users of the building themselves.

Interior

1 / 3

Competition: 5/2009
Project: 2009 - 2011
Implementation: 2011 - 2012
Usable area of building: 1 650 m2
Built-up area: 684 m2
Usable area of the green roof: 415 m2
Green areas: 2 200 m2
Enclosed volume: 6 203 m3

Author: Roman Brychta, Adam Halíř, Ondřej Hofmeister, Petr Lešek
Co-operating architect: Tomáš Bouma, Marek Sankot

Construction project and HIP: Deltaplan
Energy efficiency conception: Jan Tywoniak, Kamil Staněk, Marek Ženka
Technical building equipment: TechOrg
Garden design and greenery: Lucie Komendová
Educational objects in the garden: Petr Korecký
Visual design and infosystem: Pixl-e
Photographer: Andrea Thiel Lhotáková

Map